Kreativt Naboskap
Oslo

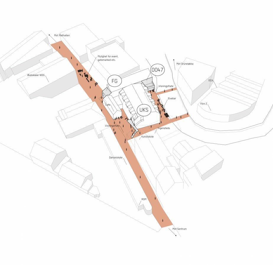
Unge Kunstneres Samfund (UKS), Fotogalleriet and Forbundet Frie Fotografer – FFF (The Norwegian Association of Fine Art Photographers) and 0047 have jointly initiated a pilot project for a possible co-location in Oslo. Transborder Studio will be leading the project, investigating possible scenarios for organisational and spatial collaborations. Furthermore Transborder Studio will conduct a survey on the urban development in Oslo with the aim of locating potential sites for the project.

Uks2 New
UKS interior
Fotogalleriet exterior
Concept

Concept

Cultural institutions along Akerselva

Cultural institutions along Akerselva

Mapping of cultural institutions in Oslo

Mapping of cultural institutions in Oslo

Existing land use and costs

Existing land use and costs

Existing land use

Existing land use

Area mix

Area mix

Rentals in Oslo

Rentals in Oslo

Site diagram

Site diagram

Diagrams

Diagrams

Program

Program

Program

Program

Program

Program

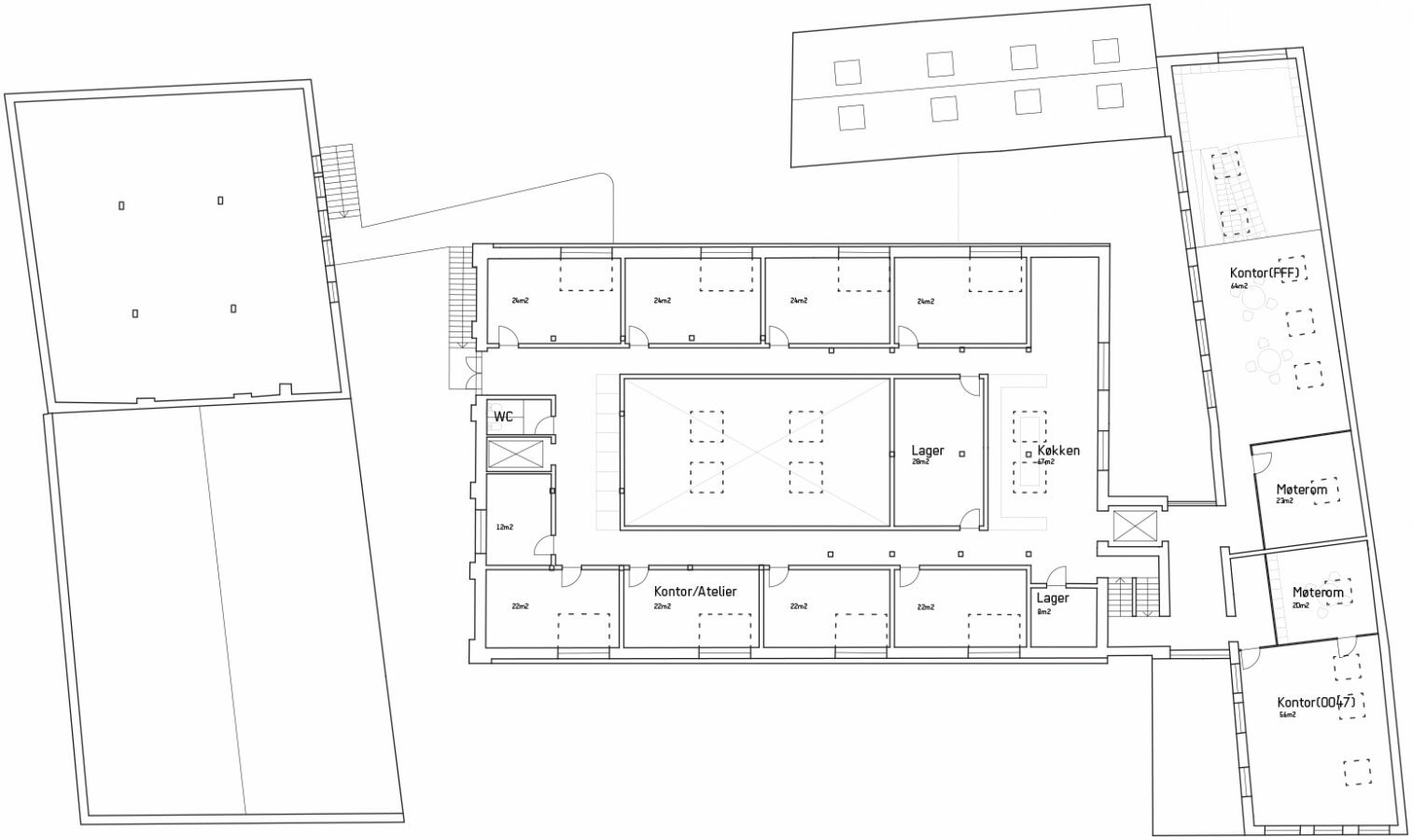
First floor

First floor

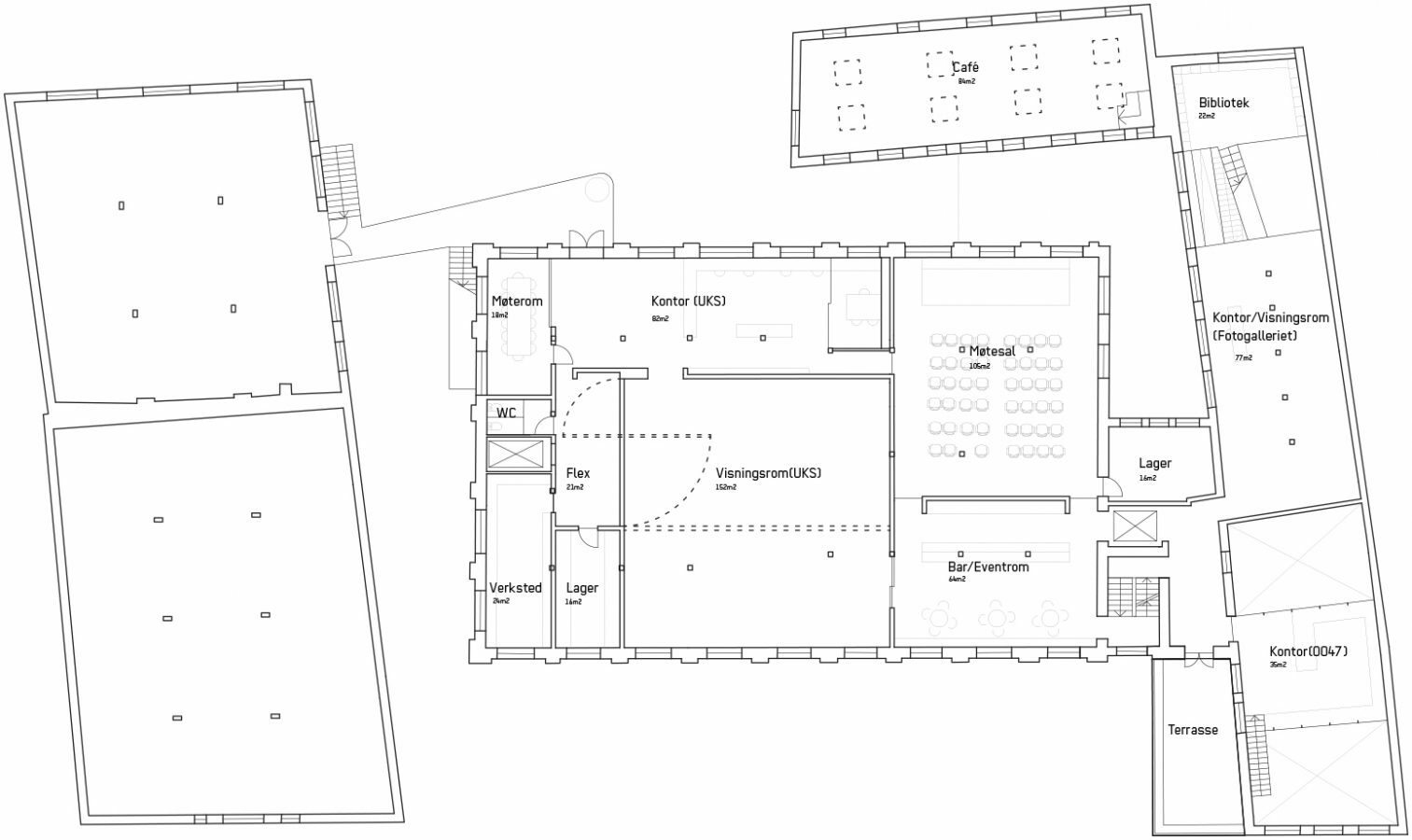
Second floor

Second floor

Third floor

Third floor

Section

Section

Section

Section

Section

Section

Site plan

Site plan

Plan

Plan

Plan

Plan

Section

Section

Section

Section

Section

Section

Type

Architecture/Research

Client

UKS, Fotogalleriet, forbundet frie Fotografer, 0047

Date

2014

Status

Ongoing

Team

Øystein Rø, Espen Røyseland, Filip Loguin, Hans-Christoph Schultz

Collaborators

Ariane Spanier (graphic designer)